Le Groupe Guiton & Cie construit un bâtiment d’environ 1 000 m² pour y abriter son siège social et ses activités d’ingénierie mais aussi avec l’optique de devenir un « campus », ayant du sens et regroupant un panel d’entreprises participant directement ou indirectement à l’acte de construire.
L’opération est située sur une parcelle communale boulevard de l’Europe à Quetigny qui accueillera un ensemble de bâtiments tertiaires. Compte tenu de sa position géographique, elle contribuera à identifier l’entrée de ville depuis l’Arc et permet de densifier en aménageant une « dent creuse ».
En construisant ce bâtiment comme une vitrine de son savoir-faire, notamment sur les sujets des énergies renouvelables et des matériaux biosourcés et bas-carbone, cette opération est un acte important dans l’évolution et le développement du groupe Guiton & Cie. Le bâtiment est ainsi construit en ossature bois avec isolation biosourcée et menuiseries bois équipées de BSO, autour d’un noyau en béton bas carbone. Il sera équipé d’une ventilation double-flux et de panneaux solaires photovoltaïques en toiture et en ombrières sur le parking.
L’aménagement paysager et la gestion de l’eau à la parcelle (avec infiltration et récupération des eaux pluviales) sont également des points forts du projet.
La proximité entre ville, transports publics, espaces verts, et installations culturelles permettra aux entreprises résidentes de promouvoir un bien-être certain à leurs collaborateurs. La proximité à 700 m d’une station de tramway et du réseau de piste cyclable encouragera les collaborateurs à utiliser des modes de transports doux.
Fiche de l'opération :
- Typologie : Tertiaire
- Nature Travaux : Construction Neuve
- Démarche qualité : Démarche BDBFC
- Climat : Plaines & collines
- Intensité Urbaine : Peri-urbain
- Référentiel : Version 1.2

Choix constructifs / Equipement
Système constructifs :
- Murs extérieurs : Structure bois, isolation en laine de coton recyclé (22 cm) + ITI en coton recyclé (5 cm) + ITE en laine de bois (12 cm) (U=0.112 W/m².K)
- Mur escalier béton bas carbone avec ITE en laine de bois
- Toiture : structure bois, isolation en laine de bois (30 cm) (U=0,135 Wm².K)
- Toiture terrasse accessible : Ossature bois + laine de roche et polyuréthane (U=0,125 Wm².K)
- Planchers sur parking : Dalle béton bas carbone 23 cm + isolant sous chape (U=0,165 Wm².K) / Plancher intermédiaires en boi
- Menuiseries : Châssis bois double vitrage et brise soleil orientable sur les façades exposées
Equipements :
- Chauffage / Climatisation: Pompe à chaleur air/eau et ventilo-convecteurs
- Eau Chaude Sanitaire : Pas de production d’ECS
- Ventilation : Double flux
- Energies renouvelables: Production photovoltaïque 98 kWc
Chiffres clés
CALENDRIER
Démarrage des travaux : T2 2024
Livraison: T3 2025
CARACTÉRISTIQUES
Nombre de bâtiments : 1
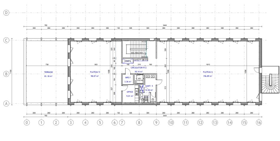
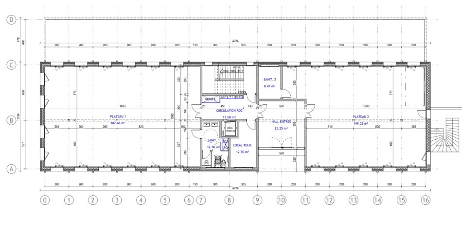
Surfaces : 1100 m²
COÛTS
Budget prévisionnel Travaux : 2,3 M€
DONNÉES ENVIRONNEMENTALES
Consommation d’énergie primaire: Cep=76,9 Kwhep/m².an (RE 2020 seuil 2025)
Ic construction=752,3 kgeqCO2/m² (gain 28%)
POINTS FORTS :
- Projet conçu par et pour les utilisateurs
- Réflexion sur la simplicité et la rationalité des matériaux et sur l’évolutivité des plateaux
- Construction « hors-site » en bois et matériaux biosourcés
- Projet paysager et principe jardins – forets
- Débit de ventilation supérieur au niveau réglementaire
- Gestion de l’eau à parcelle