Le Trois – Nouveau lieu partagé
Chateau-Chinon
Nièvre (58)
Bâtiment tertiaire
Réhabilitation
Plaines et collines
Centre-bourg
Conception
09/2024
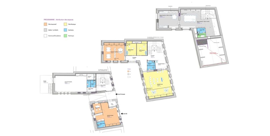
La Communauté de communes Morvan Sommets et Grands Lacs souhaite créer un lieu partagé dans les locaux de l’ancien tribunal de Château-Chinon, à l’abandon depuis 2009.
Les objectifs de ce projet de lieu partagé sont :
- Redonner envie aux habitants et à la jeunesse de s’investir, de développer, d’innover, d’y croire, d’être fiers de leur territoire,
- Créer un espace d’accueil, de rencontres et d’échanges entre les habitants, les associations, et entre les associations et le monde institutionnel ;
- Créer du lien social sur le territoire intercommunal et particulièrement sur le Haut Morvan, faciliter l’animation de la vie locale,
- Réhabiliter ce bâtiment qui accueillait le tribunal, dans une démarche de développement durable, avant qu’il ne devienne une verrue dans le centre-bourg de Château-Chinon.
- Créer des espaces de circulation piétons pour désenclaver les différents quartiers de Château-Chinon et sécuriser les promeneurs et les familles ;
- Donner les moyens à l’école de Musique et de danse Morvan Sommets et Grands Lacs de bénéficier de locaux adaptés et développer les pratiques artistiques.
Le projet consiste en la restructuration d’un bâtiment existant en plein centre-bourg sans construction nouvelle consommatrice de foncier, avec une démarche exemplaire en matière de Développement Durable.
Fiche de l'opération :
- Typologie : Tertiaire
- Nature Travaux : Réhabilitation
- Démarche qualité : Démarche BDBFC
- Climat : Plaines & collines
- Intensité Urbaine : Centre-bourg
- Référentiel : Version 1.2

Choix constructifs / Equipement
Système constructifs :
- Structure : Murs en pierre existants conservés (50cm)
- Murs extérieurs : Laine de bois (20cm) en ITI (façade nord et mitoyens) ou en ITE (façades sur cour intérieure) – R=5,3 m².K/W
- Plancher bas : Laine de bois en sous-face (20cm) au niveau du porche – R=5,3 m².K/W
- Plancher haut/combles : Structure bois existante conservée + isolation ouate de cellulose soufflée (35cm) – R=8,75 m².k/W
- Menuiseries :
- Châssis bois Uw<1,3 W/m².K
- Double vitrage et occultation par brise soleil orientables (BSO), ponctuellement par brise soleil fixes
Equipements :
- Chauffage : Réseau de chaleur urbain
- Eau Chaude Sanitaire :Pas d’ECS dans les sanitaires, production par ballons électriques localisés
- Ventilation : Simple flux par insufflation et puits climatique
- Eclairage par LED basse consommations, détection de présence dans les circulations
Chiffres clés
CALENDRIER
Livraison prévue : T2 2026
CARACTÉRISTIQUES
Nombre de bâtiments : 1
Surfaces : 470 m²
COÛTS
Budget prévisionnel Travaux : 1,39 M€ HT
Budget prévisionnel global : 1,7 M€ HT
CONSOMMATIONS ÉNERGÉTIQUES
Consommation d’énergie primaire réglementaire visée : 86,4 kWhep/m².an
POINTS FORTS :
- Forte démarche participative et forte implication des acteurs du projet
- Participation à la dynamique du centre-bourg, définition d’un programme au plus près des besoins
- Aménagement paysager qui augmente les surfaces végétalisées et la gestion des EP à la parcelle
- Intégration de la biodiversité dans le projet